Система Sirius 200 - для облицовки композитными панелями
Описание
Система Sirius 200 используется для крепления композитных кассет к фасаду здания. Система отвечает всем современным требованиям и имеет необходимые сертификаты.
|
Оставить заявку
Официальный представитель Sirius:
Описание системы Sirius SL-200
Фото | Артикул | Описание |
![]() |
SD-9.1 |
Терморазрыв большойСлужит для снижение теплопередачи между основанием здания и кронштейном системы. |
![]() |
SD-9.2 |
Терморазрыв малыйСлужит для снижение теплопередачи между основанием здания и кронштейном системы. |
![]() |
KL-80У KL-150У KL-190У KL-230У |
Кронштейн усиленныйСлужит для крепления направляющих профилей к основанию здания. |
![]() |
KL-80Б KL-150Б KL-190Б KL-230Б |
Кронштейн большойСлужит для крепления направляющих профилей к основанию здания. |
![]() |
KL-80M KL-150M KL-190M KL-230M |
Кронштейн малыйСлужит для крепления направляющих к основанию здания. |
![]() |
SD-7.10 |
Удлинитель кронштейна усиленныйСлужит для увеличения длинны большого кронштейна |
![]() |
SD-7.11 |
Удлинитель кронштейна большойСлужит для увеличения длинны большого кронштейна |
![]() |
SD-7.12 |
Удлинитель кронштейна малыйСлужит для увеличения длинны малого кронштейна |
![]() |
SP-1.1 |
Профиль H - образныйСлужит для крепления облицовочного материала к подсистеме вентфасада. |
![]() |
SP-1.3 |
Профиль L - образныйСлужит для крепления облицовочного материала к подсистеме вентфасада. |
![]() |
SP-5.3 |
Профиль стыковочный h-образныйСлужит для стыковки панелей (например таких материалов как композитные панели, акрил,поликарбонат, ПВХ и другие материалы). |
![]() |
SD-7.2 |
Салазка внутренняя со штифтомСлужит для крепления облицовочного материала к направляющему профилю. |
![]() |
М6х25 |
Винт для салазки c внутренним шестигранникомСлужит для крепления салазки к направляющему профилю. Размером 6мм на 25 с острым концом. |
![]() |
SD-7.1 |
Крепитель кассеты универсальныйСлужит для крепления облицовочного материала к направляющему профилю. |
![]() |
SD-7.4 |
Шайба-пластинаСлужит для фиксации и усиления углов в кассете из композитных листов. |
![]() |
SD-7.5 |
Уголок алюминиевыйСлужит для фиксации и усиления углов в кассете из композитных листов. |
![]() |
K-6 |
Заклепка вытяжная 3 мм х 8 ммСлужит для крепления кляммера к направляющему профилю. |
![]() |
K-14 |
Заклепка вытяжная 5 мм х 12 ммСлужит для крепления направляющего профиля к кронштейну. |
![]() |
10х100мм |
Фасадный анкерный дюбельСлужит для крепления кронштейна и термомоста к основанию здания |
Отличие системы Sirius SL-201
Фото | Артикул | Описание |
![]() |
SP-1.1 |
Профиль Т - образныйСлужит для крепления облицовочного материала к подсистеме вентфасада. |
![]() |
SD-7.3 |
Салазка внешняя со штифтомСлужит для крепления облицовочного материала к подсистеме вентфасада. |
Отличие системы Sirius SP-200
Фото | Артикул | Описание |
![]() |
SP-2.2 |
Профиль П композитСлужит для крепления облицовочного материала к подсистеме вентфасада. |
![]() |
KP-80У KP-150У KP-190У KP-230У |
Кронштейн усиленныйСлужит для крепления направляющих профилей к основанию здания. |
![]() |
KP-80Б KP-150Б KP-190Б KP-230Б |
Кронштейн большойСлужит для крепления направляющих профилей к основанию здания. |
![]() |
KP-80M KP-150M KP-190M KP-230M |
Кронштейн малыйСлужит для крепления направляющих к основанию здания. |
![]() |
SD-7.13 |
Удлинитель кронштейна усиленныйСлужит для увеличения длинны кронштейна |
![]() |
SD-7.14 |
Удлинитель кронштейна большойСлужит для увеличения длинны кронштейна |
![]() |
SD-7.15 |
Удлинитель кронштейна малыйСлужит для увеличения длинны кронштейна |
Цена системы Sirius SP-200
Если Вас заинтересовали товары и услуги нашей компании, Вы всегда можете связаться со специалистами ТД «Урфас» по контактным телефонам +7(343)328-47-55 и +7(3452)60-46-01 или электронной почте urfas.td@mail.ru.

Внутренний угол

Наружный угол

Узел отлива. Вариант 1

Узел отлива. Вариант 2

Боковой откос. Вариант 1

Боковой откос. Вариант 2

Боковой откос. Вариант 3

Боковой откос. Вариант 4

Верхний откос. Вариант 1

Верхний откос. Вариант 2

Верхний откос. Вариант 3

Верхний откос. Вариант 4

Примыкание к цоколю. Вариант 1

Примыкание к цоколю. Вариант 2

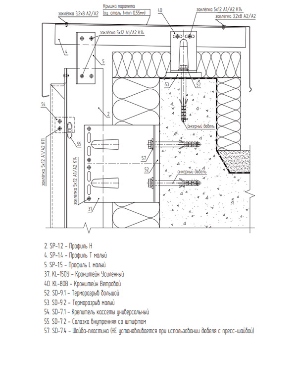
Узел парапета. Вариант 1

Узел парапета. Вариант 2

Расчет на квадратный метр системы Sirius SL-200
Внимание!
Расчет сделан на типовой участок фасада с утеплением плитами толщиной 100 мм и не учитывает архитектурных особенностей здания.
Стоимость подсистемы для вентилируемого фасада
Расчет сделан на типовой участок фасада без учета архитектурных особенностей!
Стоимость утепления вентилируемого фасада
Стоимость облицовочного материала для вентилируемого фасада
Цена работы по монтажу вентилируемого фасада
Сертификаты для композитных панелей:



Сертификаты для подсистемы:



Сертификаты для утеплителя:

Если Вас заинтересовали товары и услуги нашей компании, Вы всегда можете связаться со специалистами ТД «Урфас» по контактным телефонам +7(343)328-47-55 и +7(3452)60-46-01 или электронной почте urfas.td@mail.ru.
